Italiano
385.000 €

AMPIA VILLA SINGOLA SU UNICO LIVELLO

Villa in vendita •
Guanzate in zona riservata vicinanze centro, comoda per ingresso autostradale.

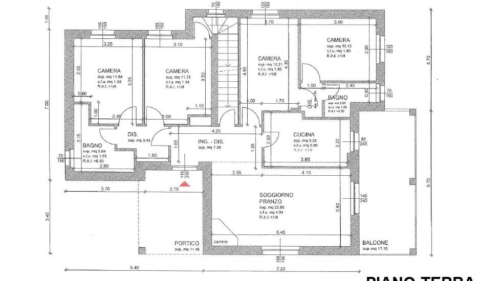
Proponiamo esclusiva villa indipendente disposta su un unico livello per una metratura complessiva di 250 mq.

Il piano terra è composto da ingresso, ampio soggiorno con caminetto, sala da pranzo, cucina abitabile dalla quale si accede ad un luminoso terrazzo di circa 20 mq, due camere matrimoniali, due camere singole e due bagni.
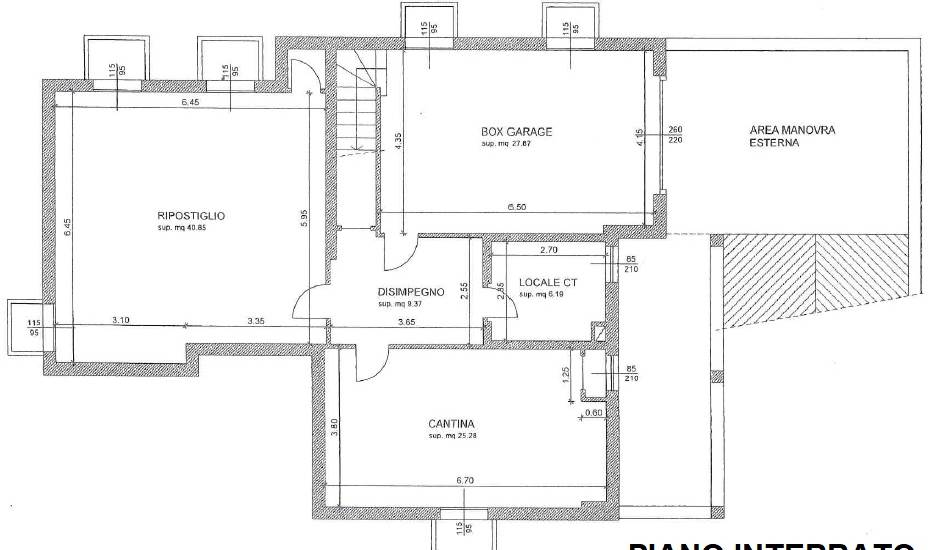
Il piano interrato è composto da disimpegno, un'ampia taverna, box doppio, cantina e locale caldaia.
Sottotetto attualmente al rustico.

Completa la proprietà un'ampio giardino di circa 500 mq. con un'ottima privacy grazie alla sua posizione riservata.

Merita visione!


Caratteristiche principali
Codice
V000051
Categoria
Villa
Prezzo
385.000 €
Locali
5
Camere
4
Bagni
2
Mq
250
Box
2
Posti auto
2
Mq Giardino
500
Terrazzi
1
Classe energetica
G
Stato Immobile
Buono
Orientamento
Nord Ovest Sud Est
Lati Liberi
4
Giardino
Privato
Tipo Soggiorno
Doppio
Tipo Cucina
Abitabile
Riscaldamento
Autonomo
Tipo Riscaldam.
Caldaia
Tipo Impianto
Radiatori
Fonte Energetica
Gas
Acqua Calda
Autonoma

Accessori: Camino, Lavanderia, Passaggio Automobilistico, Porta Blindata, Ripostiglio

Condividi su
Cookie preference